GIỜ MỞ CỬA:
THỨ 2 - T7  7:30 SÁNG ĐẾN 17:00 CHIỀU
Điện thoại:
0902207776
FAX:
Loading...

Nhà cấp 4 như resort

Với cây xanh, hồ nước và hệ thống ánh sáng dịu nhẹ, căn nhà ở Hội An là nơi gia chủ lấy lại năng lượng sau mỗi ngày làm việc


Trên mảnh đất 7x33 m ở An Bàng, Hội An, gia chủ độc thân cho xây một ngôi nhà mang dáng dấp truyền thống với mái ngói và mái hiên rộng.

Dựa trên mong muốn nhà là nơi tìm về bình yên, bỏ lại sự xô bồ bên ngoài của gia chủ, các kiến trúc sư đưa ra thiết kế nhà một tầng được bao quanh bởi vườn xanh, hồ nước như resort.

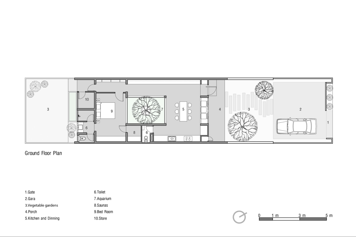
Không gian nhà gồm bốn phần lần lượt là garage để xe, vườn, khối nhà chính và vườn rau. Tổng diện tích xây dựng chiếm 120 m2.

Hướng tới sự gần gũi và tự nhiên, công trình sử dụng những vật liệu tạo cảm giác thô mộc như ngói, đá rửa, gỗ sồi, bê tông kết hợp với nhiều cây xanh.

Hàng hiên trước nhà làm bằng đá rửa, lấy ý tưởng từ màu cát biển. Phần gỗ hoàn thiện bằng dầu lau với mục đích giữ lại màu gỗ tự nhiên và hạn chế sơn PU để bảo vệ sức khỏe. Sàn, mái được đổ bằng bê tông cốt thép, tăng khả năng chống chịu với khí hậu miền Trung.

Bên trong, không gian sinh hoạt được thiết kế sao cho người ở tiếp xúc với thiên nhiên nhiều nhất có thể. Bên cạnh ô cửa sổ lớn đưa gió mát vào nhà là bệ ngồi để gia chủ ngồi uống trà, đọc sách mỗi buổi chiều.

Bếp - phòng ăn được coi như không gian đa năng, đáp ứng các nhu cầu ăn uống, chuyện trò, đọc sách, nhâm nhi tách trà.

Tủ bếp làm bằng gỗ công nghiệp còn mặt bếp và mặt lưng sử dụng đá mài nhằm đảm bảo đủ cứng, chắc cho các thao tác bếp. Các nội thất như bàn, ghế thì được tận dụng từ gỗ cũ từ căn nhà trước đây của gia chủ.

Giữa nhà, các kiến trúc sư bố trí giếng trời với hồ nước. Ngoài mục đích tăng thẩm mỹ cho công trình, khu vực này điều hòa vi khí hậu, làm mát nhà trong những ngày nắng nóng

Hồ nước còn là chỗ dự trữ nước tưới cây, điều rất cần thiết bởi khu vực xây nhà hay mất điện.

Nhờ bố trí giếng trời và hồ nước ở trung tâm căn nhà, mọi khu vực chức năng đều mở ra thiên nhiên. Gia chủ không chỉ được hưởng ánh sáng tự nhiên, gió trời mà còn có thể vừa ngắm vừa nghe mưa rơi xuống hồ.

Sau nhà còn một mảnh vườn. Hiện khu vườn được bố trí một WC và chòi lá làm chỗ uống trà, nghỉ ngơi. Trong tương lai, nếu muốn tăng diện tích sinh hoạt, gia chủ có thể cơi nới thêm.

Phòng ngủ nhìn thẳng ra giếng trời cùng hồ nước, ngoài cửa kính và rèm còn có thêm cửa lưới chống muỗi để lấy gió mà chặn được côn trùng.

Nằm sát giếng trời và hồ nước, không gian này luôn được nhận gió nên không dùng điều hòa, chỉ cần quạt trần làm mát và trộn đều oxy trong phòng.

Bên cạnh thiên nhiên, hệ thống chiếu sáng cũng là một yếu tố quan trọng để tạo nên không gian thư giãn cho gia chủ. Căn nhà dùng chủ yếu các loại đèn giấu sâu bóng và đèn hắt với ánh sáng dịu nhẹ. Như vậy, người ở không bị nhìn thẳng vào bóng đèn, đỡ gây khó chịu cho mắt.

Bản vẽ bố trí mặt bằng của công trình. Căn nhà hoàn thiện năm 2021 với tổng chi phí bao gồm tiền thiết kế, xây dựng và thiết bị khoảng 1,65 tỷ đồng.

  • Chia sẻ qua viber bài: Nhà cấp 4 như resort
  • Chia sẻ qua reddit bài:Nhà cấp 4 như resort

Bài viết khác:

Biệt thự hiện đại 3 tầng đẹp ngỡ ngàng với ý tưởng thiết kế từ bụi tre

Trong văn hoá của người Việt, cây tre rất gần gũi, bình dị nhưng cũng rất duyên dáng. Hình ảnh những cây tre mọc theo bụi, thẳng đứng và đều đặn đã trở thành ý tưởng thiết kế biệt thự hiện đại này.  

7 ý tưởng thiết kế nhà bếp sẽ thành xu hướng trong năm 2022

Tính bền vững và sự kết nối với thiên nhiên sẽ là trọng tâm của những tưởng thiết kế, trang trí nội thất trong năm nay.

Gia đình bỏ phố về quê, làm nhà ngoài vuông trong tròn

Muốn sống gần gũi thiên nhiên mà vẫn riêng tư, ngôi nhà của Quân Hạo thiết kế bên ngoài là tường không cửa sổ, mặt trong là hai tầng hoàn toàn bằng kính.

Thiết kế độc đáo của khu căn hộ cho thuê đẹp như mơ tại thành phố biển Vũng Tàu

Các kiến trúc sư đã thiết kế rất tinh tế khi tạo nên những căn phòng tối giản, đậm màu sắc thô mộc nhưng vẫn tràn đầy lãng mạn và ấm áp.