GIỜ MỞ CỬA:
THỨ 2 - T7  7:30 SÁNG ĐẾN 17:00 CHIỀU
Điện thoại:
0902207776
FAX:
Loading...

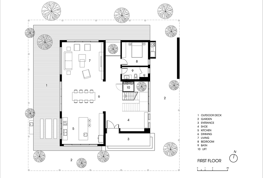
Biệt thự hiện đại 3 tầng đẹp ngỡ ngàng với ý tưởng thiết kế từ bụi tre

Trong văn hoá của người Việt, cây tre rất gần gũi, bình dị nhưng cũng rất duyên dáng. Hình ảnh những cây tre mọc theo bụi, thẳng đứng và đều đặn đã trở thành ý tưởng thiết kế biệt thự hiện đại này.  

Đối với đơn vị thiết kế biệt thự này, mỗi công trình là một quá trình sáng tạo về ý tưởng, giải pháp kỹ thuật và hài hòa với nhu cầu của gia chủ. Trong đó, việc tìm kiếm ý tưởng thiết kế là bước đầu tiên và luôn được khơi dậy từ những nét đặc trưng của văn hóa địa phương, những điểm độc đáo của môi trường tự nhiên.

Biệt thự hiện đại 3 tầng này toạ lạc trong một khu đô thị ở huyện Văn Giang, tỉnh Hưng Yên.

Cảm hứng để thiết kế biệt thự hiện đại này cũng đến từ sự bình dị, nhẹ nhàng và duyên dáng nhưng cũng rất đặc biệt của bụi tre bên cạnh. 

Trong văn hóa Việt Nam, cây tre rất gần gũi, chúng mọc theo bụi gồm nhiều thân thẳng đứng, đều đặn, đây là ý tưởng chủ đạo để thiết kế nên ngôi biệt thự đơn lập này.

  • Chia sẻ qua viber bài: Biệt thự hiện đại 3 tầng đẹp ngỡ ngàng với ý tưởng thiết kế từ bụi tre
  • Chia sẻ qua reddit bài:Biệt thự hiện đại 3 tầng đẹp ngỡ ngàng với ý tưởng thiết kế từ bụi tre

Bài viết khác:

Nhà cấp 4 như resort

Với cây xanh, hồ nước và hệ thống ánh sáng dịu nhẹ, căn nhà ở Hội An là nơi gia chủ lấy lại năng lượng sau mỗi ngày làm việc

7 ý tưởng thiết kế nhà bếp sẽ thành xu hướng trong năm 2022

Tính bền vững và sự kết nối với thiên nhiên sẽ là trọng tâm của những tưởng thiết kế, trang trí nội thất trong năm nay.

Gia đình bỏ phố về quê, làm nhà ngoài vuông trong tròn

Muốn sống gần gũi thiên nhiên mà vẫn riêng tư, ngôi nhà của Quân Hạo thiết kế bên ngoài là tường không cửa sổ, mặt trong là hai tầng hoàn toàn bằng kính.

Thiết kế độc đáo của khu căn hộ cho thuê đẹp như mơ tại thành phố biển Vũng Tàu

Các kiến trúc sư đã thiết kế rất tinh tế khi tạo nên những căn phòng tối giản, đậm màu sắc thô mộc nhưng vẫn tràn đầy lãng mạn và ấm áp.